O inwestycji
Osiedle Kościuszki II Bliźniaki to kolejna nasza inwestycja, tym razem w mieszkania w zabudowie bliźniaczej, realizowana w bezpośrednim sąsiedztwie Rzeszowa. Doskonała lokalizacja inwestycji zapewnia zarówno komfort i wygodę oraz dogodne połączenie z centrum Rzeszowa.
Inwestycja Kościuszki II Bliźniaki to możliwość zamieszkania w przytulnym mieszkaniu z zielonym ogrodem i miejscami parkingowymi.


Osiedle Kościuszki II Bliźniaki zlokalizowane jest w Tyczynie przy ul. Kościuszki. Jest to zupełnie nowa inwestycja mieszkaniowa, w skład której wchodzi kompleks budynków w zabudowie bliźniaczej z mieszkaniami o powierzchni parter – 65,59 ( ogródek od 40 m2) i piętro – 72,02 m2 .( możliwość adaptacji strychu na antresolę min 20m2).
Nowoczesny design budynków, w których zachowana została tradycyjna bryła oraz zastosowano duże przeszklenia. Bliźniaki w inwestycji Osiedle Kościuszki II charakteryzują szklane balustrady, i elementy dekoracyjne na elewacjach. Całość została zaprojektowana na bazie atestowanych, wysokiej jakości materiałów, ze szczególnym uwzględnieniem parametrów wpływających na komfort użytkowania.
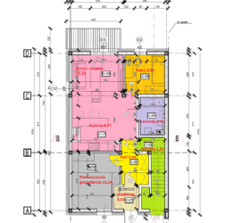
Parter to niezależne mieszkanie o powierzchni 65,59 m2 z wiatrołapem, holem, spiżarką, łazienką, z połączonymi: salonem, jadalnią i kuchnią oraz dwoma niezależnymi pokojami. Całość mieszkania uzupełnia zielony ogród przyległy do salonu i jednego z pokojów.
Piętro ma powierzchnię 72,02 m2. Mieszkanie posiada wiatrołap z klatką schodową trzy niezależne pokoje, łazienkę oraz połączone: kuchnię, salon i jadalnię, które stanowią idealną przestrzeń do życia całej rodziny.
Atuty inwestycji
Osiedle Kościuszki II Bliźniaki to doskonała lokalizacja w odniesieniu do istniejącej i nowoprojektowanej struktury komunikacyjnej aglomeracji miejskiej!
- Malownicza i spokojna dzielnica Tyczyna
- Dużo terenów zielonych
- Miejsce postojowe do każdego mieszkania
- Szybki dojazd do centrum miasta zmodernizowaną ul.Sikorskiego
- Market techniczno-budowlany i spożywczy w bliskiej odległośc
- Dogodny dojazd do lokalnych szkół, przedszkoli, urzędów
- Bezpośrednie połączenie komunikacją miejską z centrum Rzeszowa
- Wysoki poziom energooszczędności budynk
Dom kultury
Przedszkole
Szkoła podstawowa
Przychodnia
Sklep spożywczy
Przystanek MPK
Kościół
Dostępność mieszkań
Zakończenie inwestycji planowane na 1-szy kwartał 2025
BLIŹNIAK NR 1
BLIŹNIAK NR 2
BLIŹNIAK NR 3
BLIŹNIAK NR 4
Standard
STAN SUROWY ZAMKNIĘTY
- Fundament tradycyjny – wylewany monolitycznie,
- Izolacja fundamentów pozioma wraz z dociepleniem styrodurem,
- Ściany nośne z betonu komórkowego 18 i 24 cm grubości,
- Schody wylewane żelbetowe,
- Kominy systemowe z wkładem ze stali nierdzewnej,
- Nadproża, słupy, podciągi, wieniec górny żelbetowe, zbrojone,
- Strop nad parterem (monolityczny) wylewany żelbetowy,
- Strop nad piętrem sucha zabudowa + wełna 30 cm – belki drewniane
- Więźba dachowa impregnowana,
- Dach kryty blachodachówką ciemnoszarą,
- Rynny i rury spustowe stalowe ciemnoszarą,
- Okna PCV 3 szybowe, montowane na poszerzeniach likwidujących mostki termiczne,
- Parapety zewnętrzne z blachy powlekanej ,
- Drzwi zewnętrzne wejściowe stalowe, z izolacją termiczną,
- Ścianki działowe bloczek z betonu komórkowego 12 cm,
- Instalacja elektryczna plus tablica,
- Instalacja TV(światłowód) i internetowa [światłowód],
- Elewacja ocieplona styropianem EPS 70 .20 cm + tynk kolor ecru,
- Balustrady zewnętrzne szkło hartowane/poliwęglan pełny , zadaszenia systemowe.
STAN DEWELOPERSKI
- Instalacja C.O. ,
- Instalacja wodno-kanalizacyjna [PCV],
- Instalacja gazowa, kocioł gazowy dwufunkcyjny, kondensacyjny,
- Tynki wewnętrzne gipsowe / cementowo-wapienne,
- Wylewki maszynowe z izolacją styropianową,
- Ogrzewanie podłogowe: kuchnia, łazienka, wiatrołap dotyczy PARTERU
kuchnia, łazienka dotyczy PIĘTRA, - Grzejniki płytowe,
- Ogrodzenie od strony ogródka z systemowych paneli w kolorze grafitowym,
- Chodniki z kostki betonowej kolor grafit/szary,
DODATKOWE [OPCJONALNE] USŁUGI
drzwi przesuwne w salonie
rolety zewnętrzne na etapie przed elewacją
dodatkowe ogrzewanie podłogowe na etapie przed wylewkami
Kontakt
KP Developer Sp.komandytowa
ul. Lubelska 22
35-233 Rzeszów
Biuro czynne:
pon-piątek: 8.00 – 16.00
www.














